Reforma Integral en Av. del Oeste,

Valencia 

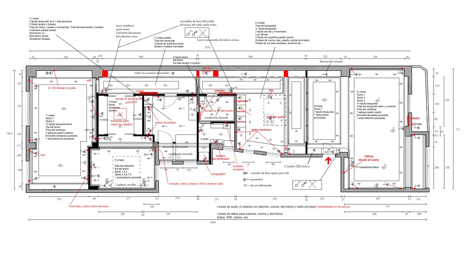
Uno de nuestros proyectos más recientes, realizado en el emblemático barrio del Mercado Central en Valencia, ha transformado completamente un espacio, brindándole un toque moderno y funcional. Aunque aún se encuentra en proceso de finalización, ya se pueden apreciar los impresionantes avances realizados.

La reforma incluye una iluminación profesional de última generación, con un diseño cuidadosamente pensado para crear un ambiente acogedor y eficiente. Además, todo el sistema eléctrico del piso está regulado por el avanzado sistema Dalí Push, que ofrece un control total sobre la iluminación y la climatización, brindando comodidad y eficiencia energética a los residentes.

A pesar de los desafíos, incluidos los meses de pausa en la obra, estamos muy satisfechos con el resultado final y con la calidad que hemos logrado ofrecer a nuestros clientes. Este proyecto refleja el compromiso de Instalaciones Llorente con la excelencia y la atención al detalle.